McCallum ,

Square Footage

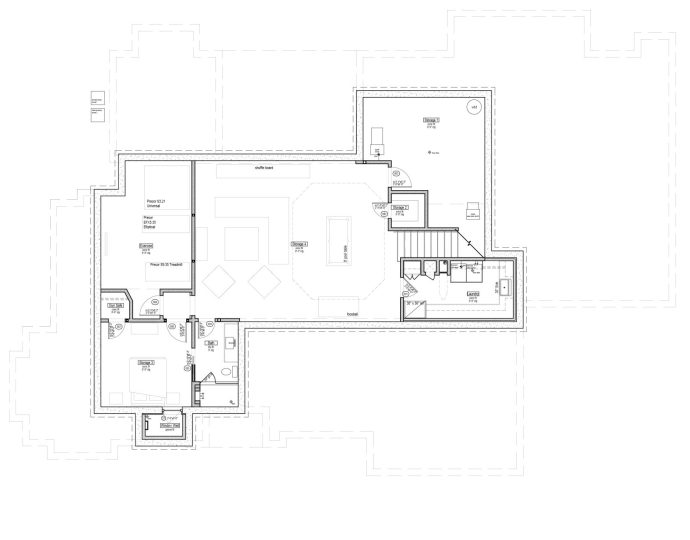
Basement Level – 1,521 sf

Entry Level – 3,633 sf

Upper Level – 1,762 sf

Covered Terrace – 309 sf

Entry Terrace – 47 sf

Garage, Storage, Mech. Total – 1,379 sf

Covered Living Area Totals  = 7,272 sf

Details

4 Bedrooms

4 Bathrooms

1 Powder Bath

4 Car Garage

General

2 Story home

2 Study

Pool and spa 

1 Pool Bath

Optional Basement plans